New Project - Shopping Quelimane

on 01 February 2014

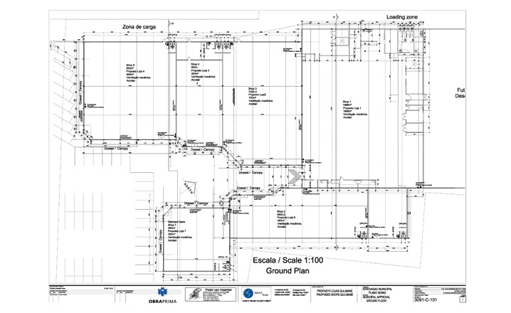
Obra Prima, Lda will be responsible for the construction of another major project - this time, it is the Shoprite Complex in Quelimane, in Zambezia Province.

The complex will have an area of ​​4500 m2 and will feature several stores, such as Clothing & Footwear, Furniture, Banks, Pharmacies and Mobile Shops, a part from a large Shoprite Supermarket and space for parking and recreation.

Obra Prima, Lda was contracted by Advent Group, a South African developer and our client for 5 years.

The project will start in May/June 2014 and is expected to be completed within two years.